blog ブログ

これからの二世帯リフォーム

リフォーム事業を担当しております坂田です。

10月に入り暑さも和らぎ、過ごしやすい季節となりました。毎年のことですが、この時期が長く続いてくれればと思うのは私だけでしょうか。
今年はリフォームの相談を受ける機会が大変多く、その内容は「水廻りだけの中規模なもの」から「大規模なフルリフォーム」まで様々です。新築に負けないくらい多くのご相談を受けております。
今回は、リフォームを行っている中で感じている事をお話しさせていただきます。
最近の土地統計調査によると、富山県は持ち家住宅率が74.9%で全国3位、1住宅当たりの住宅延べ面積は最近のコスト高から小さくなったとはいえ138.7㎡(全国平均90.8㎡)で全国1位、居住室(居間・茶の間・寝室などの居住用の室)の畳数も44.9畳(全国平均32.5畳)とこれもまた1位で、全国に比べ住宅に掛ける思いの強さが伺えます。
しかし、新しい住宅が建てば当然空き家も多くなります。平成30年の調査時は全国平均(13.6%)を下回り13.3%で35位でしたが、昨年令和5年では全国平均(13.8%)を上回り14.7%で30位となっています。
数年前にあるご家族のお住まいをリフォームさせていただきました。
ご主人のご実家に、子世帯編入として2世帯住宅に改装するという内容でした。


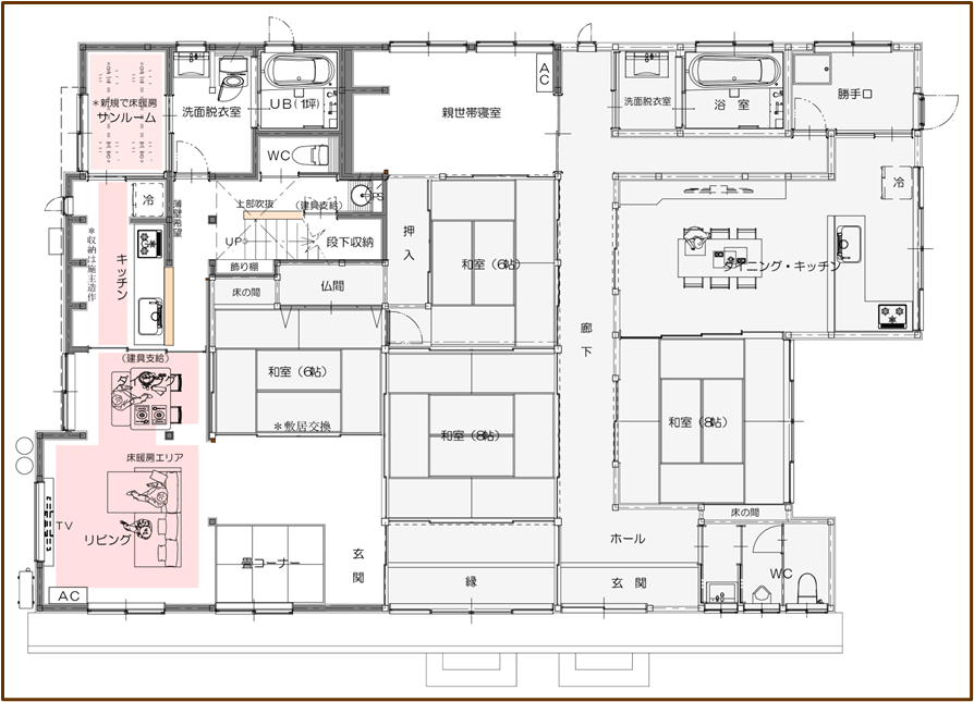
親御さんの住空間はすでにリフォームをされており綺麗だったので、日頃使用していない和室を改装して子世帯空間の水廻りを追加しました。(下図 リフォーム前図面とリフォーム後図面をご覧ください。)
リフォーム前
リフォーム後
上記でも述べたように住宅は余ってきております。
環境の良い土地を見つけて新しい家を建てるのが理想ですが、人気のある土地は高かったり、最近の資材高騰の煽りから、住宅自体の坪単価も上がってきております。
建替え(リフォームでも)2世帯住宅はプライバシーを確保しにくいと感じられるかもしれませんが、共働きによる子供の世話であったり、将来的に親の介護が必要になった時の対応であったり、同居分離型にはメリットも多いように感じられます。
また、同一敷地内に子世帯の家を新築するケースも多くありますが(私も同様)、母屋が空き家になった場合、住宅ローンの支払いや子育てに追われる中で、残った母屋の改装費を捻出するのは非常に難しいと思います。手を付けられる内に、修繕しながら使っていかれる事をおすすめします。
今年は、震災に遭われた方で住み慣れた環境を離れなければならない方もおられると思います。一日も早いご復興をお祈り申し上げます。
今回ご紹介したお住まいの施工実例はこちらから